NEW

花巻市高木第15地割 土地建物

360万円

岩手県花巻市高木第15地割

東北本線「花巻」駅バス9分岩手県交通「上小路」停歩2分

価格
360万円
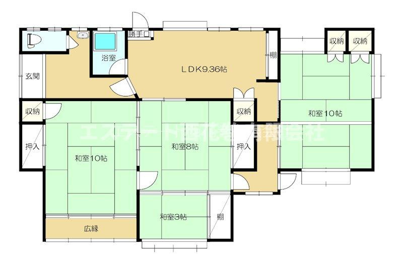
間取り
4DK
土地面積
211.14㎡
所在地
岩手県花巻市高木第15地割
交通

東北本線花巻」駅 バス9分 岩手県交通「上小路」 停歩2分

建物面積
56.15㎡
築年月
1971年6月(築54年)

物件の特徴

  • バストイレ別

セールスポイント

【商談中】古いですが、水洗化されており個人病院、ショッピングモールが近くにある他に停留所も徒歩3分。車が無くても生活しやすい場所です。
一部屋一部屋が広い造りになっております。

ポイント

玄関ホール 続き和室 南庭 近隣ショッピング施設あり

基本情報

販売戸数
-
総戸数
-
間取り / 詳細
4DK
向き
-
建物面積(坪数)
56.15㎡(16.98坪)
土地面積(坪数)
211.14㎡(63.86坪)
建ぺい率 /
容積率
60%/200%
築年月
1971年6月(築54年)
駐車場 /
月額料金
有 -
土地権利
所有権
土地
(敷金 / 保証金)
- / -
建物構造
木造 / 1階建
傾斜地部分面積
-
路地状敷地
-
私道負担面積
-
セットバック
高圧線下面積
-
施工会社
-
用途地域
第一種住居
地目 / 地勢
宅地 / 平坦
接道状況
角地(南 公道 8.5m 間口 2.6m)(西 公道 2.3m 間口 22.0m)
国土法届出要否
不要
都市計画
非線引区域
総区画数 /
販売区画数
-/-
現況
空家
その他
法令上の制限
景観法/都市の低炭素化の促進に関する法律 下水道法
取引態様
一般媒介
引渡し
相談
取引条件の
有効期限
2025年11月29日

設備条件

設備条件
  • プロパンガス / 公営水道 / 公共下水 / 駐車2台可 / ガスコンロ / バス・トイレ別 / 住戸内覧可能
設備(その他)
    -

その他

物件番号
90459307
管理コード
0000000084
建築確認番号
-
情報更新日
2025年11月15日
次回更新予定日
2025年11月29日
備考
※この建物は花巻市ハザードマップ浸水エリア内に位置しています。
〇西側の道路は公道ではありますが建築確認を取れない(建築法第42条に該当しない道路)道路になります。ですからセットバックも不要となります。

周辺施設

  • 藤巻胃腸科内科クリニックの画像

    クリニック

    藤巻胃腸科内科クリニック

    30m(1分)

  • 銀河モール花巻の画像

    ショッピングセンター

    銀河モール花巻

    43m(1分)

  • 矢沢郵便局の画像

    郵便局

    矢沢郵便局

    290m(4分)

  • セブンイレブン 花巻高木の画像

    コンビニエンスストア

    セブンイレブン 花巻高木

    374m(5分)

  • 八森歯科医院の画像

    歯科

    八森歯科医院

    385m(5分)

  • 薬王堂 花巻高木店の画像

    ドラッグストア

    薬王堂 花巻高木店

    447m(6分)

  • 矢沢/(株)JAグリーンサービス花巻の画像

    ガソリンスタンド

    矢沢/(株)JAグリーンサービス花巻

    504m(7分)

  • JAいわて花巻矢沢支店の画像

    銀行

    JAいわて花巻矢沢支店

    601m(8分)

  • 総合花巻病院の画像

    総合病院

    総合花巻病院

    1375m(18分)

  • 花巻市立矢沢小学校の画像

    小学校

    花巻市立矢沢小学校

    1455m(19分)

  • 花巻市役所の画像

    市役所・区役所

    花巻市役所

    1910m(24分)

  • 花巻市立矢沢中学校の画像

    中学校

    花巻市立矢沢中学校

    2132m(27分)

近隣の物件

  1. 湯口佐野 土地建物

    花巻市湯口字佐野

    8DK (119.45㎡)

    600万円

  2. 花巻市上根子字法領 土地建物

    花巻市上根子字法領

    7DK (164.58㎡)

    1,000万円

  3. 花巻市若葉町一丁目 土地建物

    花巻市若葉町1丁目

    7DK (152.40㎡)

    1,200万円

  4. 湯口洗沢 土地建物

    花巻市湯口字洗沢

    5K (96.05㎡)

    350万円

花巻市高木第15地割 土地建物

花巻市高木第15地割 土地建物

360万円

-

4DK(56.15㎡)

お気軽にお問い合わせください

無料お問い合わせ

エステート西花巻 有限会社

0198-23-2320

9:00~18:00

(休:日曜日・年末年始・ゴールデンウィーク・夏季休暇)