花巻市東和町東晴山8区 土地建物

250万円

岩手県花巻市東和町東晴山8区

釜石線「晴山」駅徒歩5分

価格
250万円
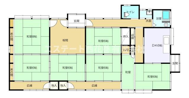
間取り
7DK
土地面積
535.38㎡
所在地
岩手県花巻市東和町東晴山8区
交通

釜石線晴山」駅 徒歩5分

建物面積
127.66㎡
築年月
1952年1月(築73年)

物件の特徴

  • バストイレ別

  • 室内洗濯機置場

セールスポイント

晴山駅から徒歩5分、JR釜石線沿いで踏切に隣接していますが、運行本数は1~3時間に上下線1本ずつ、最終時間は21時過ぎ頃になりますので真夜中、早朝の電車の往来はありません。
空家になって6年、改修工事は必要ですが水洗化になっております。広い敷地で畑や花壇など楽しめます。周辺には民家、交番、郵便局がありますし、国道283号線、駅へも近いのでほどほど便利な田舎物件です。

基本情報

販売戸数
-
総戸数
-
間取り / 詳細
7DK
向き
建物面積(坪数)
127.66㎡(38.61坪)
土地面積(坪数)
535.38㎡(161.95坪)
建ぺい率 /
容積率
70%/200%
築年月
1952年1月(築73年)
駐車場 /
月額料金
有 -
土地権利
所有権
土地
(敷金 / 保証金)
- / -
建物構造
木造 / 1階建
傾斜地部分面積
-
路地状敷地
-
私道負担面積
-
セットバック
高圧線下面積
-
施工会社
-
用途地域
無指定
地目 / 地勢
宅地 / 平坦
接道状況
一方(北 公道 6.0m 間口 12.0m)
国土法届出要否
不要
都市計画
非線引区域
総区画数 /
販売区画数
-/-
現況
空家
その他
法令上の制限
景観法/下水道法
取引態様
一般媒介
引渡し
相談
取引条件の
有効期限
2025年12月13日

設備条件

設備条件
  • レトロ / 室内洗濯機置場 / プロパンガス / 公営水道 / 公共下水 / 電気有 / 駐車2台可 / ガスコンロ / バス・トイレ別 / 洗面台
設備(その他)
    -

その他

物件番号
90477155
管理コード
-
建築確認番号
-
情報更新日
2025年11月29日
次回更新予定日
2025年12月13日
取扱会社
  • エステート西花巻 有限会社
  • 岩手県花巻市西大通り2丁目16-19 
  • TEL:0198-23-2320
  • 岩手県知事 (7) 第001908号
  • 一般社団法人 岩手県宅地建物取引業協会
    公益社団法人 全国宅地建物取引業保証協会
備考
●1979年増築58.24㎡が未登記です。
●敷地内電柱あり。
●建物内の残置物は、購入予定者が不要な物は売主負担にて処分してからの引渡しとなります。

周辺施設

  • 花巻警察署谷内駐在所の画像

    警察

    花巻警察署谷内駐在所

    86m(2分)

  • 谷内郵便局の画像

    郵便局

    谷内郵便局

    400m(5分)

  • 晴山医院の画像

    総合病院

    晴山医院

    509m(7分)

  • コメリハード&グリーン岩手東和店の画像

    ホームセンター

    コメリハード&グリーン岩手東和店

    3328m(42分)

  • 業務スーパー マルシェ東和店の画像

    スーパー

    業務スーパー マルシェ東和店

    3516m(44分)

  • JAいわて花巻東和町支店の画像

    銀行

    JAいわて花巻東和町支店

    3628m(46分)

  • 岩手銀行土沢支店の画像

    銀行

    岩手銀行土沢支店

    3692m(47分)

  • 花巻市立東和小学校の画像

    小学校

    花巻市立東和小学校

    4078m(51分)

  • 花巻市役所東和総合支所の画像

    市役所・区役所

    花巻市役所東和総合支所

    4104m(52分)

  • 岩手県立東和病院の画像

    総合病院

    岩手県立東和病院

    4247m(54分)

  • 花巻市立東和中学校の画像

    中学校

    花巻市立東和中学校

    4719m(59分)

  • 新花巻駅の画像

    新花巻駅

    9709m(122分)

近隣の物件

  1. 湯口佐野 土地建物

    花巻市湯口字佐野

    8DK (119.45㎡)

    600万円

  2. 花巻市上根子字法領 土地建物

    花巻市上根子字法領

    7DK (164.58㎡)

    1,000万円

  3. 花巻市若葉町一丁目 土地建物

    花巻市若葉町1丁目

    7DK (152.40㎡)

    1,200万円

  4. 湯口洗沢 土地建物

    花巻市湯口字洗沢

    5K (96.05㎡)

    350万円

花巻市東和町東晴山8区 土地建物

花巻市東和町東晴山8区 土地建物

250万円

-

7DK(127.66㎡)

お気軽にお問い合わせください

無料お問い合わせ

エステート西花巻 有限会社

0198-23-2320

9:00~18:00

(休:日曜日・年末年始・ゴールデンウィーク・夏季休暇)