花巻市湯口字大沢 土地建物

400万円

岩手県花巻市湯口字大沢

東北本線「花巻」駅バス25分岩手県交通「大沢温泉」停歩2分

価格
400万円
間取り
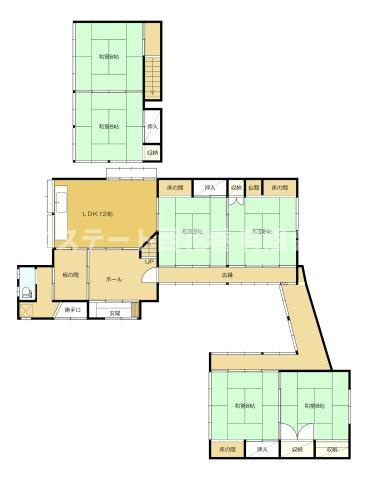
6LDK
土地面積
490.50㎡
所在地
岩手県花巻市湯口字大沢
交通

東北本線花巻」駅 バス25分 岩手県交通「大沢温泉」 停歩2分

建物面積
174.39㎡
築年月
1952年1月(築74年)

セールスポイント

大沢温泉隣りの一般住宅です。空き家になって3年です。
大沢集落の方は無料で大沢温泉(自炊部のみ)に入ることが出来ますのでこの建物の中にはお風呂がありませんが毎日温泉につかることが出来ます。
目の前に広がる山々の四季を感じられる場所ですが、停留所まで徒歩2分ですので車が無くても何とかなりそうです。大沢温泉郵便局まで徒歩4分です。

基本情報

販売戸数
-
総戸数
-
間取り / 詳細
6LDK
向き
-
建物面積(坪数)
174.39㎡(52.75坪)
土地面積(坪数)
490.50㎡(148.37坪)
建ぺい率 /
容積率
70%/200%
築年月
1952年1月(築74年)
駐車場 / 月額
無(屋根有) / -
土地権利
所有権
土地
(敷金 / 保証金)
- / -
建物構造
木造 / 2階建
傾斜地部分面積
-
路地状敷地
-
私道負担面積
-
セットバック
高圧線下面積
-
施工会社
-
用途地域
無指定
地目 / 地勢
宅地 / 平坦
接道状況
一方(東 公道 6.0m 間口 21.0m)
国土法届出要否
不要
都市計画
非線引区域
総区画数 /
販売区画数
-/-
現況
空家
その他
法令上の制限
景観法/急傾斜地崩壊危険区域
取引態様
一般媒介
引渡し
相談
取引条件の
有効期限
2026年04月19日

設備条件

設備条件
  • レトロ / プロパンガス / 公営水道 / 個別浄化槽 / 電気有 / 駐車3台可 / ガスコンロ / 温水洗浄便座
設備(その他)
    -

その他

物件番号
90476626
管理コード
-
建築確認番号
-
情報更新日
2026年04月05日
次回更新予定日
2026年04月19日
取扱会社
  • エステート西花巻 有限会社
  • 岩手県花巻市西大通り2丁目16番19号 
  • TEL:0198-23-2320
  • 岩手県知事 (7) 第001908号
  • 一般社団法人 岩手県宅地建物取引業協会
    公益社団法人 全国宅地建物取引業保証協会
備考
※この建物は花巻市ハザードマップ 土砂災害警戒区域(急傾斜)に位置しています。
・大沢集落の住人は大沢温泉(自炊部)のお風呂に無料で入浴ができます。
・居住中は自家水も利用しておりました。

周辺施設

  • 大沢温泉 自炊部・湯治屋の画像

    温泉

    大沢温泉 自炊部・湯治屋

    216m(3分)

  • 花巻警察署大沢駐在所の画像

    警察

    花巻警察署大沢駐在所

    237m(3分)

  • 大沢温泉郵便局の画像

    郵便局

    大沢温泉郵便局

    315m(4分)

  • ファミリーマート 花巻南温泉峡口店の画像

    コンビニエンスストア

    ファミリーマート 花巻南温泉峡口店

    4789m(60分)

  • 須田内科医院の画像

    内科

    須田内科医院

    7231m(91分)

  • 花巻市立湯口中学校の画像

    中学校

    花巻市立湯口中学校

    7354m(92分)

  • 花巻市立湯口小学校の画像

    小学校

    花巻市立湯口小学校

    7599m(95分)

  • Aコープ  ゆぐちの画像

    スーパー

    Aコープ ゆぐち

    7665m(96分)

  • 東北自動車道 花巻南IC 上り 入口の画像

    その他

    東北自動車道 花巻南IC 上り 入口

    11334m(142分)

  • きらきらモールの画像

    ショッピングセンター

    きらきらモール

    12047m(151分)

よく見られている物件

  1. 花巻市若葉町一丁目 土地建物

    花巻市若葉町1丁目

    7DK (152.40㎡)

    1,000万円

  2. 湯口洗沢 土地建物

    花巻市湯口字洗沢

    5K (96.05㎡)

    350万円

  3. 花巻市愛宕町 土地建物

    花巻市愛宕町

    5LDK (154.00㎡)

    550万円

  4. 花巻市湯口字大沢 土地建物

    花巻市湯口字大沢

    6LDK (174.39㎡)

    400万円

花巻市湯口字大沢 土地建物

花巻市湯口字大沢 土地建物

400万円

-

6LDK(174.39㎡)

お気軽にお問い合わせください

LINEからお問い合わせ 無料お問い合わせ

エステート西花巻 有限会社

0198-23-2320

9:00~18:00

(休:日曜日)